一、基础后浇带施工缝及变形缝设置的具体位置本工程主楼为片筏基础,底标高为-5.3m。其中在1-6轴和1-7轴处南北方向设1000mm宽后浇带一道,1-25轴和1-26轴处设120mm宽变形缝一道。地下车库墙板和顶板位于2-A轴和2-B轴处设1000mm宽后浇带一道,2-5轴和2-6轴处设60mm宽变形缝一道,2-9轴和2-10轴处设60mm宽变形缝一道。基础施工
查看更多
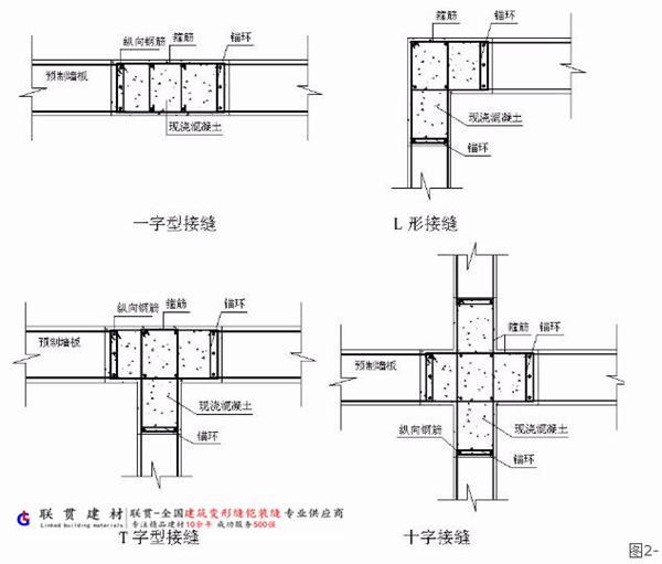
剪力墙结构拉缝工艺做法 建筑主体结构接缝包括接缝和裂缝。其中接缝大多是设计设置的连接不同材料、构件或分割统一构件的规则缝隙;裂缝一般是意外发生的、走向和形状不规则的。 1、预制剪力墙的顶面、底面和两侧面应处理为粗糙面或者制作键槽,与预制剪力墙连接的地梁上表面和圈梁上表面也应处理为粗糙面。粗糙面露出
查看更多
分仓缝是刚性屋面防止变形裂缝的产生而设置的,一般尺寸为6*6,施工完成后里面需要进行防水处理,如填油膏等。分仓缝的施工:1、准备40厚C30刚性防水混凝土面层;2、制作10厚低标号砂浆隔离层;3、加入3厚SBS改性沥青防水卷材,20厚1:3水泥砂浆找平层;5、保温或隔热层作业;6、最薄30厚LC5.0轻集料混凝土2%找坡层;7、钢筋
查看更多
走廊的分仓缝可以和主体浇筑吗构造柱,构造柱是为了抵抗横向力的,不承受竖向荷载。要是和主体一起浇筑的话,那不就是变成结构柱了吗?那力学性能就不一样了,受力方式都改变了,构造柱和梁结合的地方会出现负弯矩,又没有像结构柱和梁的节点那样设置构造钢筋来抵抗负弯矩,就会出现裂缝。 各向同性圆分
查看更多
要知道分仓缝弹性缝设备是由棱角维护扁钢、传力钢板、地坪分仓缝钢板、传力板弹性鞘套、易断塑料螺栓、锚固栓钉等组成。分仓缝弹性设备,地坪的各个分仓块可以沿着纵横两个方向自在弹性,防止产生裂缝。每条分仓缝设备由两条棱角扁钢组成,经过易断塑料螺栓把扁钢固定在一起,每
查看更多
胀缝和缩逢、假缝都是伸缩缝,主要是为了防止温度的变化引起路面结构的热胀冷缩过大而造成破坏。胀缝和缩逢都有钢筋传力杆,假缝没有传力杆。工艺不同。胀缝一般50~100米设置,缩逢4~5米设置一道。还有纵向的施工缝,就是分块施工时候设置的纵缝。面层也要设置。防止地面因温度变化收缩的开裂,面层也同样要设置缝
查看更多
厂房车间的混凝土地坪只需设置缩缝,横向按每开间柱子轴线分划;纵向按4~6米分划。 胀缝只设在结构的区段,以结构的变形缝来代替。地面多厚啊。要是在10-15公分的。就4-5米一个,不过要是长距离的话,要200米设一个胀缝混凝土留置伸缩缝的原因如下:1、由于温度和湿度的变化,混凝土会产生膨胀和收缩的现象,如这种胀缩受到限
查看更多
斑马缝施工完成之后留意哪些问题? 当大家在斑马缝施工完成之后,在这里大家还是需要注意一下维护操作,主要就是为了避免因为雨水的冲刷,从而造成破坏,还有就是施工操作当中,在在这里大家要随时的根据气候的变化,从而做出一些相应的调整工作,当大家发现当前施工条件比较恶劣的情况下,还是需要避免施工,再
查看更多
关于预制板的分仓缝的距离是多少,首先我们要了解到在安装分仓缝的时候,要注意其中的纵横间距,一般不适宜大于六厘米,当然这是通用的标准,如果具体的施工面积,实际工况存在特殊的情况,也可以稍微做调整,不过最好还是先去咨询分仓缝的厂家进行了解,再去做安装,这样也可以避免出现安装错误等问题。 
查看更多
不管是什么建筑,在进行施工之前,除了要取得相应的施工许可之外,也需要结合建筑本身的要求,来制定施工方案。同样的,在进行地坪施工时,也是需要有相应施工方案的,只有制定了相应的方案,才能按方案的要求和步骤进行施工,也才能保障完工后的地坪能满足使用需要。那么地坪铠甲缝地坪施工方案是由产品生产企业提供
查看更多
分仓缝和分格缝的区别之处是可以需要重点注意的,其实在当前的建筑物设置当中,分仓缝和分格缝都有它存在的必要性,对于分仓缝,主要内容就是为了避免刚性屋面变形,从而产生裂痕从而设置的,当大家在施工完毕之后则是需要进行防水处理,分仓缝和分格缝的区别之处主要就是在使用目的以及安装方式上。 1、分仓
查看更多
1.伸缩条有什么用 关于地坪伸缩缝伸缩条有什么用,其实这里我们要知道在地坪施工的时候,留一个伸缩缝,主要就是为了防止在遇到气候温度变化的时候,让地面出现裂缝,破坏等情况,所以在施工的过程中,都会将整个地面进行切割,这样分成不同的小区域以后,就可以达到很好的效果。这里要注意的是,在施工的时候都会用到
查看更多